Pretty mountain views and trails! Two site-built homes on 16 acres. $1,225,000.
Property Overview
- Price: $1,225,000
- Address: 137 Allens Way, Crossville, TN 38572
- Total Acreage: 16.20 Acres
- Property Type: Single Family Residence / Ranch with 2 site-built homes
- Special Features: Stocked pond, creek, mountain views, and private gated access.
This one-of-a-kind estate offers incredible privacy and natural beauty for those seeking a tranquil lifestyle. If you have been searching for a sprawling residence for sale, this 16-acre mountain retreat provides everything you need.
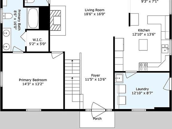
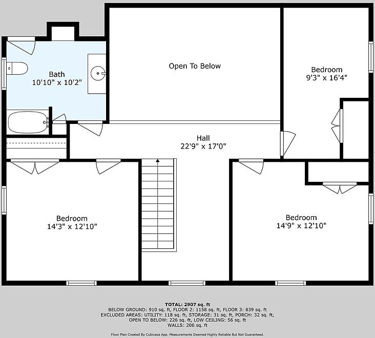
Primary Home (Custom Log Home)
- Size: 3,300+ sq. ft. (Built in 2008)
- Layout: 5 Bedrooms | 3.5 Bathrooms | 2-Story with Full Finished Basement
- Interior Features: Stacked TN stone wood-burning fireplace, granite countertops, cherry cabinets, and a walk-in pantry.
- Master Suite: Large master bath with a tile shower and jet tub.
- Basement: Large open-concept recreation room with an eat-in area.
- Exterior: Wraparound covered decking, covered patio, and professional landscaping.
The log home combines rustic charm with high-end efficiency and modern comfort. This impressive house for sale is perfect for multi-generational living or hosting large gatherings in the heart of Tennessee.
Second Home (113 Allens Way)
- Size: 2,400 sq. ft. (Built in 2021)
- Layout: 2 Bedrooms | 2 Bathrooms | Ranch Style
- Interior Features: Open concept kitchen/dining/living area, quartz countertops, and a butcher block island.
- Heating: Iron cast wood-burning stove and a pellet stove.
- Exterior: L-shaped front covered porch and an attached 2-car garage.
- Infrastructure: Backup generator and 7.5 inches of insulation for maximum efficiency.
This newer modern ranch provides a sleek, energy-efficient alternative to the main log cabin. You won’t find another property for sale that offers two complete, high-quality homes on a single plot of land.
Land & Outbuildings
- Pole Barn: 40×60 with an extended roof and high doors for RV/toy storage.
- Storage: Multiple additional outbuildings for tools and equipment.
- Nature: Trails throughout the property with abundant wildlife (not logged in 30+ years).
- Water: Large stocked pond and a running creek on-site.
The exterior amenities make this property a dream for hobbyists and outdoor enthusiasts alike. With its massive barn and lush acreage, this is a premier residence for sale for anyone wanting a functional hobby farm.
From Zillow
16.20 AC RANCH with 2 site-built homes and being sold together. CUSTOM BUILT HOMES WITH OUTBUILDINGS, POND , CREEK & A POLE BARN: 137 ALLENS WAY CUSTOM LOG HOME: Built in 2008, 2 story – full finished basement, over 3300 sq ft, 5BD/3.5BA, Stacked TN stone built wood burning FP in the l, wood burning iron cast FP, custom efficient kitchen with granite counter tops / Cherry cabinets / stainless steel appliances / large walk-in pantry, large laundry room, large master bedroom with a lovely large master bath with a tile shower & jet tub, Basement has a large open concept recreational room with an eat in area and recreational area / bedroom in the bsmt, the 2nd floor of the log home has 3BD’s (one room used an office), wrap around covered decking with a covered patio below, detached 2 car garage, install generator and professional landscaping.
























































































