Check out the wrap-around porch!! Turn-key horse property in Lexington. $649,999.

Property Highlights & Features

Core Details:

  • Price: $649,999
  • Address: 271 Palomino Trl, Lexington, NC 27295
  • Property Type: Turn-key mini-farm / Farmhouse
  • Year Built: 1998
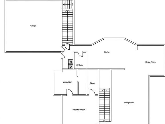
  • Bedrooms: 3
  • Bathrooms: 2.5
  • Square Footage: 2,157 sq. ft.
  • Lot Size: 9.86 Acres
  • This stunning farmhouse sits on nearly ten acres of fenced land and represents a rare opportunity for anyone looking for a high-quality residence for sale. The property is uniquely equipped for agriculture and privacy, making it a standout choice for those seeking a peaceful lifestyle.

Interior Features:

  • Primary Bedroom: Located on the main level for convenience.
  • Kitchen: Features a central island, dishwasher, microwave, and free-standing range.
  • Living Space: Large living room with a gas log fireplace equipped with a blower fan.
  • Flooring: A mix of wood, carpet, and vinyl throughout.
  • Bonus Room: A spacious additional room upstairs, perfect for an office or playroom.
  • Additional Tech: Intercom system to the house, 5G cell service, broadband internet, and a security system.
  • The interior layout is thoughtfully designed with a brand-new roof and a cozy fireplace to ensure year-round comfort. This beautiful house for sale offers the perfect blend of modern connectivity and classic country charm.

Exterior & Farm Infrastructure:

  • Frontage: The home overlooks a private pond frequently visited by local waterfowl.
  • Porch: Large wrap-around stone porch with new handrails.
  • Acreage: 9.86 acres, entirely enclosed with perimeter fencing and an automatic gate.
  • Outbuildings: Large barn with water and electricity, livestock shed, and a chicken coop.
  • Animal Management: Six distinct pens and a zoning (RA3) that allows for horses.
  • Parking: Attached 2-car garage and a long concrete driveway.
  • The outdoor space is a true “mini-farm” dream, featuring superior infrastructure and a serene pond setting. If you have been searching for an expansive property for sale that is ready for horses or livestock, this is the one.

Special Financial Perk:

  • Assumable Loan: Features a 2.25% assumable VA loan for qualified buyers.

From Zillow

RARE OPPORTUNITY! 9.86-acre turn-key mini-farm featuring a 2.25% ASSUMABLE VA LOAN for qualified buyers. Entirely enclosed with perimeter fencing and an automatic gate, this former alpaca farm is perfectly suited for horses or livestock. The 2,157 sqft 3BR/2.5BA farmhouse features a brand-new roof, a wrap-around stone porch with new hand rails, and a large bonus room.

A concrete driveway leads past a private pond frequently visited by local waterfowl. Superior infrastructure is in place: a large barn with water and electricity, an intercom system to the house, a livestock shed, a chicken coop, and 6 distinct pens for animal management. Additional features include city water, 5G cell service, broadband internet, and a pre-paid one-year alarm contract. No HOA or deed restrictions. The seller is offering various farm equipment for separate purchase or negotiation. Shown by appointment only. Contact Lucas Dargis at 336-684-7754 or [email protected].

1st image of this home

2nd image of this home

3rd image of this home

4th image of this home

5th image of this home

6th image of this home

7th image of this home

8th image of this home

9th image of this home

10th image of this home

11th image of this home

12th image of this home

13th image of this home

14th image of this home

15th image of this home

16th image of this home

17th image of this home

18th image of this home

19th image of this home

20th image of this home

21st image of this home

22nd image of this home

23rd image of this home

24th image of this home

25th image of this home

26th image of this home

27th image of this home

28th image of this home

29th image of this home

30th image of this home

31st image of this home

32nd image of this home

33rd image of this home

34th image of this home

35th image of this home

36th image of this home

37th image of this home

38th image of this home

39th image of this home

40th image of this home

41st image of this home

42nd image of this home

43rd image of this home

44th image of this home

45th image of this home

46th image of this home

47th image of this home

48th image of this home

49th image of this home

Similar Posts

Leave a Reply

Your email address will not be published. Required fields are marked *