Beautiful woodwork! Classic 1920 farmhouse on 40 acres. $662,000.
Property Overview
- Price: $662,000
- Address: 1797 County Road 15, Wadley, AL 36276
- Year Built: 1920
- Lot Size: 40 Acres
Interior & Home Details
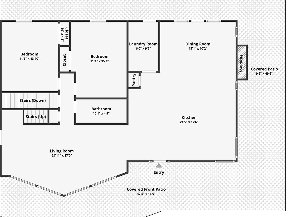
- Bedrooms: 4
- Bathrooms: 2
- Square Footage: 2,904 sq. ft.
- Key Features: Original hardwood floors, classic fireplaces with ornate mantels, high ceilings, and traditional farmhouse architecture.
- Kitchen: Spacious layout with vintage character and ample storage.
This historic home boasts stunning woodwork and a spacious layout perfect for a growing family. If you are looking for a timeless residence for sale, this well-preserved interior offers unmatched charm.
Land & Exterior Features
- Acreage: 40 sprawling acres of rolling Alabama countryside.
- Outdoor Structures: Massive detached workshop/garage and multiple outbuildings.
- Natural Beauty: Mature trees, open pastures, and a serene, private setting.
- Porch: Large wraparound porch ideal for enjoying the rural views.
The exterior provides endless possibilities for farming, recreation, or simply enjoying the peace of a vast private estate. This sprawling property for sale is a rare find for anyone seeking land and privacy.
Location & Lifestyle
- Area: Located in Wadley, known for its quiet, rural atmosphere near the Tallapoosa River.
- Potential: Ideal for a hobby farm, equestrian estate, or a peaceful weekend retreat.
Experience the best of Southern country living with plenty of room to roam and breathe. This unique house for sale offers the perfect escape from the hustle and bustle of city life.
From Zillow
Perched atop one of Randolph County’s highest points, this beautiful cedar home offers breathtaking views overlooking 40 acres of prime pasture and hunting land. This 3 bedroom, 2 bath home combines comfort, privacy, and scenic country living. The spacious primary suite features a dedicated workout space just off the master.
A basement adds valuable additional space for storage, hobbies, or future expansion. Outside, the 40 acres provide a stunning mix of open pasture and excellent hunting land, making it ideal for livestock, recreation, or simply enjoying the peaceful surroundings. Abundant wildlife and rolling views create a true outdoor paradise. The cedar exterior blends perfectly with the natural landscape, giving the home a warm and inviting retreat feel.
Whether you’re searching for a homestead, hunting getaway, or private country escape, this property offers space, beauty, and opportunity in one of Randolph County’s most elevated and scenic spots. Schedule your private tour!

Explore 3D tour
Floor plan















































































